ARTTU Pracownia Architektury
Pomiń nawigacje
  • start
  • projekty
  • konserwatorskie
  • archiLektura
  • publikacje
  • arttu
  • kontakt
 

ROZBUDOWA DOMU Z LAT 50

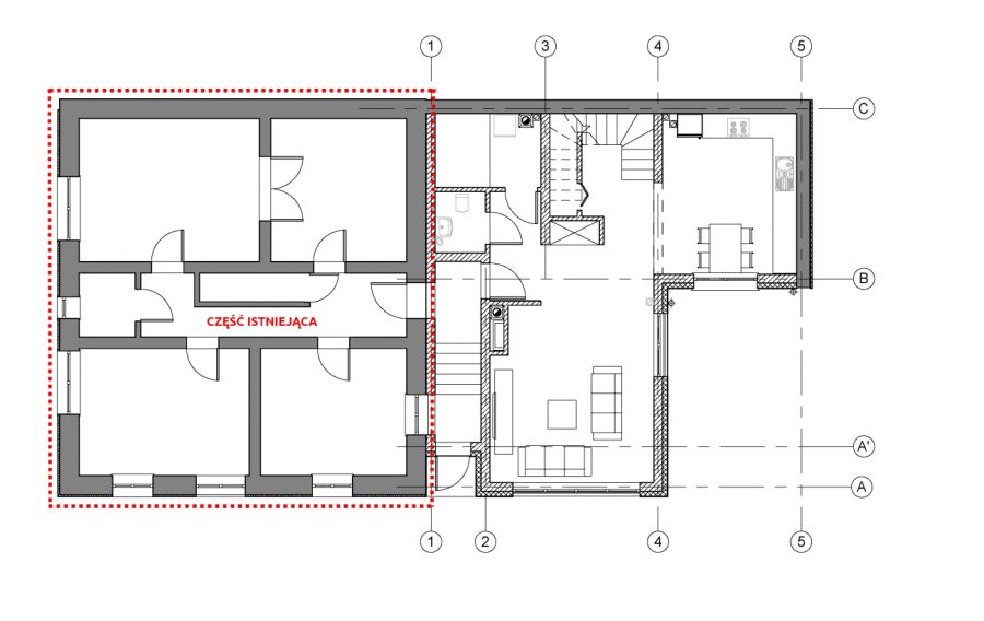
Istniejący budynek wybudowany został w latach 50-tych XX wieku. Stoi w ostrej granicy działki. Jest to budynek dwukondygnacyjny – parter + poddasze użytkowe, zaprojektowany na planie kwadratu, podpiwniczony. Wyniesienie parteru ponad teren wynosi ok. 1,15m. Obiekt charakteryzuje się prostą formą, dachem o kacie nachylenia ok. 30 stopni, z lukarnami z trzech stron. Budynek wykończony w tynku, dach pokryty blachodachówką . W zachodniej i północnej granicy działki znajdują się budynki gospodarcze, których przeznaczenie ma zostać zmienione na funkcję mieszkalną i, które zostaną nadbudowane i włączone do nowoprojektowanego budynku. W ekspertyzie konstrukcyjnej stanu istniejącego dokonano analizy, jaki jest stan techniczny istniejącego budynku i pomieszczeń gospodarczych, które ściany zostaną wykorzystane, i w jaki sposób należy poprawić ich stan techniczny. Pozostałe ściany będą musiały zostać rozebrane, ponieważ kolidują z projektowaną inwestycją.
Nowa część budynku została zaprojektowana jako bryła zwarta, dwukondygnacyjna, o wysokości nie przekraczającej gabarytów istniejącego budynku. Forma budynku w wyraźny sposób nawiązuje do elewacji budynku istniejącego, ale jednocześnie, dzięki prostym detalom i dużym przeszkleniom, jest nowoczesna.
Kształtowanie nowej bryły jako kontynuacji budynku istniejącego, spokojna, prosta forma nowej części, mają sprawić, że oba budynki będą stanowiły harmonijną całość i będą dobrze wpisane w istniejące otoczenie. Sposób kształtowania bryły jest zgodny z zapisem w WZT.

 

współpraca: mgr inż. arch. Maria Falkiewicz

 

Projekt - 2011

Realizacja - ?

stan istniejący

powrót

3D View 3a
widok 3D
rzut parteru
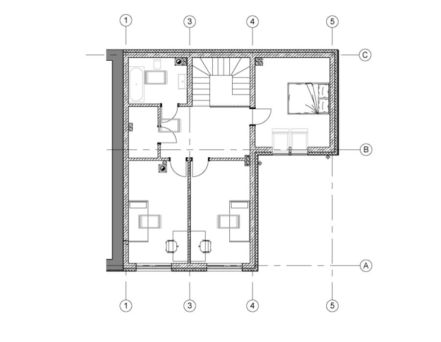
pietro

o ile nie zaznaczono inaczej wszystkie materiały tu zawarte: © 2001 - 2026 arttu

Darmowy licznik odwiedzin