OPIS
Budynek drewniany został zbudowany w roku 1939 we wsi na Podlasiu.
Opracowanie obejmuje przeniesienie tego budynku na wieś pod Konstancinem, montaż na uprzednio przygotowanych fundamentach, wykonanych zgodnie z projektem konstrukcji.
Ściany istniejącego budynku zbudowane są z bali 12cm, strop drewniany na balach ok 20x20cm, więźba – krokwie 10x15cm. Poddasze – do adaptacji.
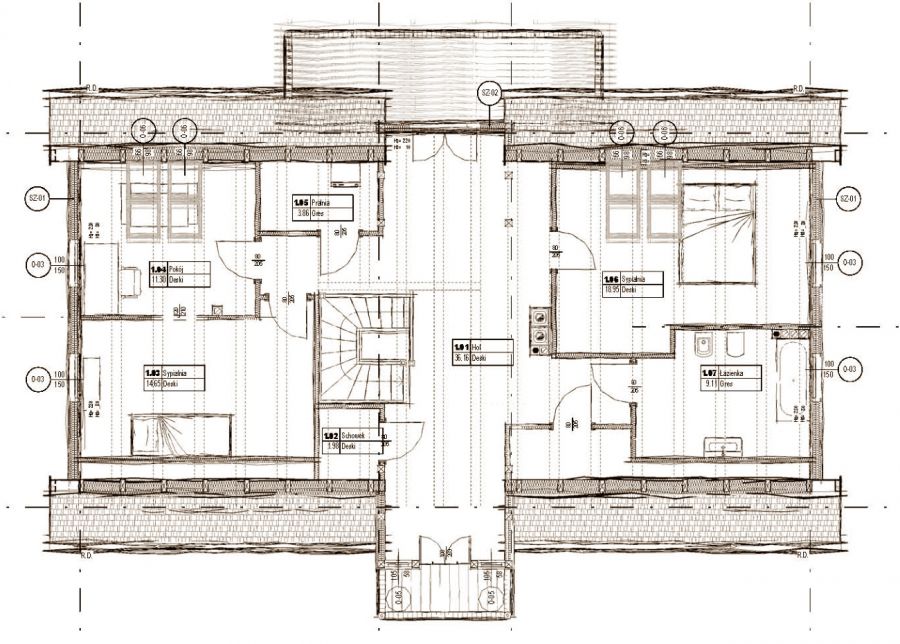
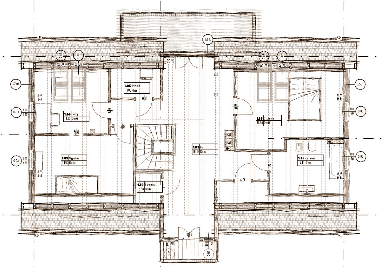
Forma budynku zostanie lekko skorygowana, aby uzyskać oczekiwane pomieszczenia na poddaszu.
Dach zostanie podniesiony o około 70cm. Skorygowany zostanie układ belek stropowych (zagęszczenie) oraz krokwi. Na werandzie zlokalizowanej od frontu budynku planuje się lekką nadbudowę, z wykonaniem małego balkonu.
Od strony ogrodu projektuje się budowę większego balkonu, stanowiącego jednocześnie zadaszenie tarasu na parterze budynku.












