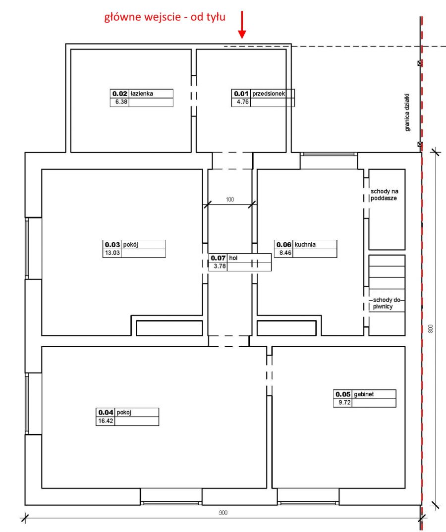
MAPKA