ARTTU Pracownia Architektury
Pomiń nawigacje
start
projekty
konserwatorskie
archiLektura
publikacje
arttu
kontakt
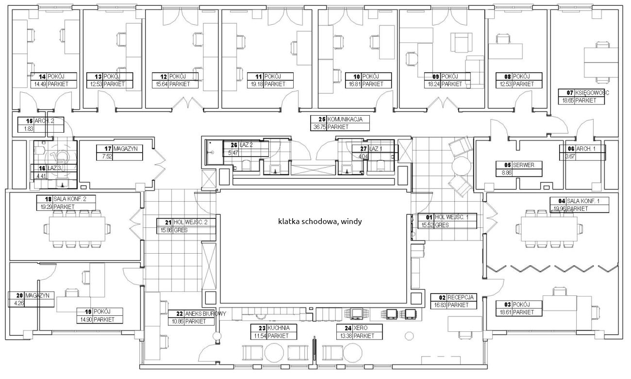
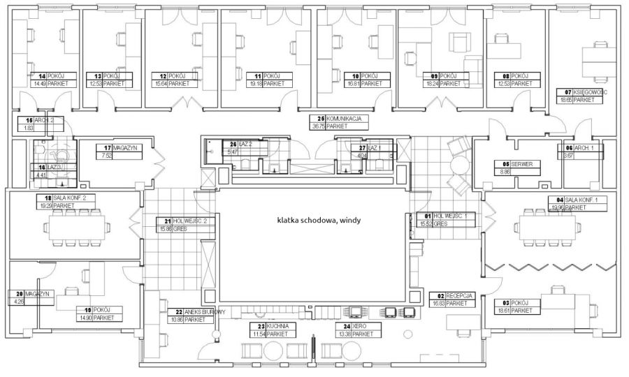
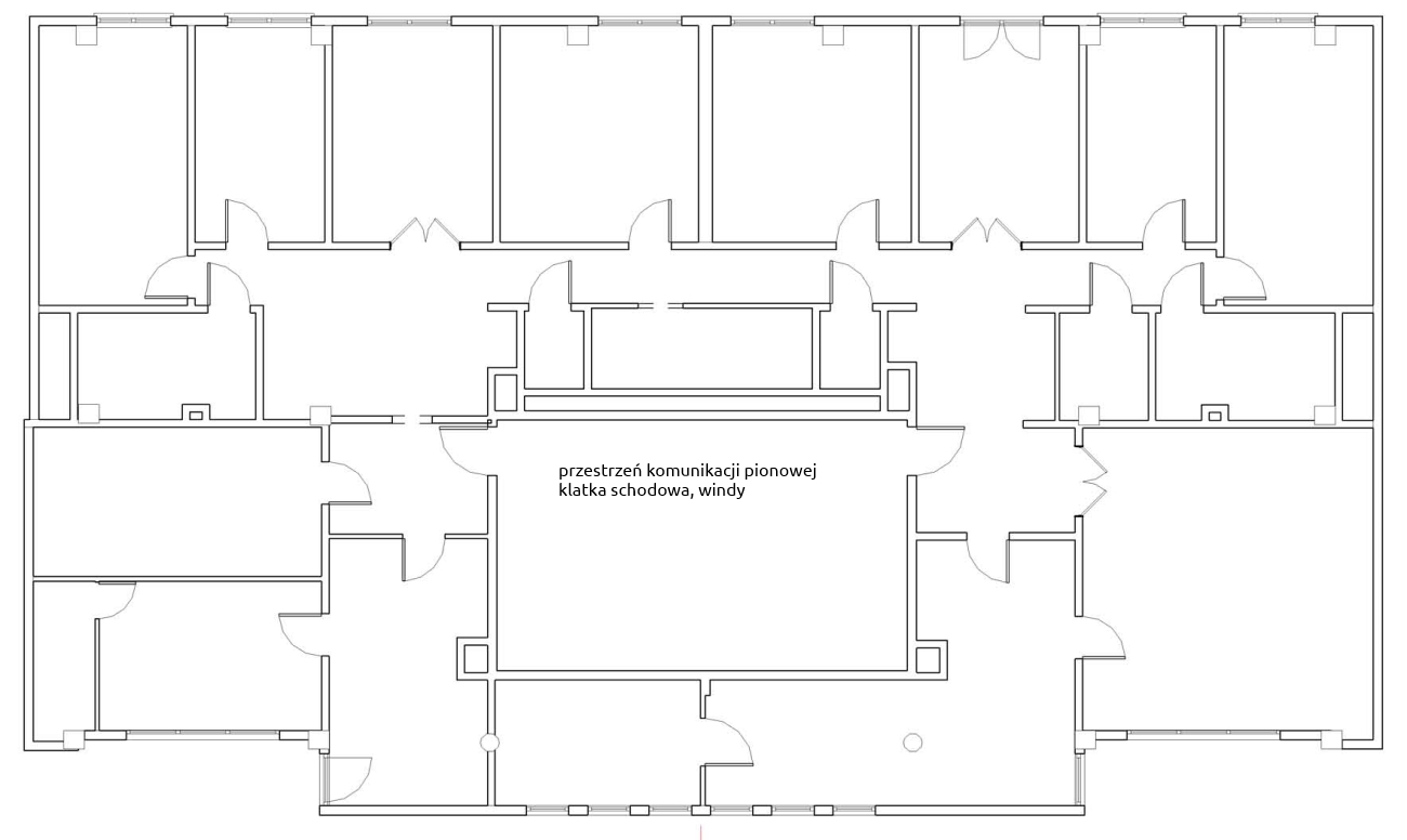
projekt aranżacji
stan istniejący
zdjęcia po realizacji
hol wejścowy; w głębi gabinet Prezesa
kuchnia biurowa
miejsce na kserokopiarki, drukarki
sala konferencyjna 1
sala konferencyjna 2
wc
łazienka dla niepełnosprawnych
wizualizacje